咨询热线:13658881314
成都海派设计师_三塘精工工艺_打造优质空间装饰方案
成都海派设计师_三塘精工工艺_打造优质空间装饰方案
项目名称
成都海派设计师_三塘精工工艺_打造优质空间装饰方案
项目类型
现代简约
项目分类
家装设计
项目面积
230㎡
项目地址
上海
设计说明

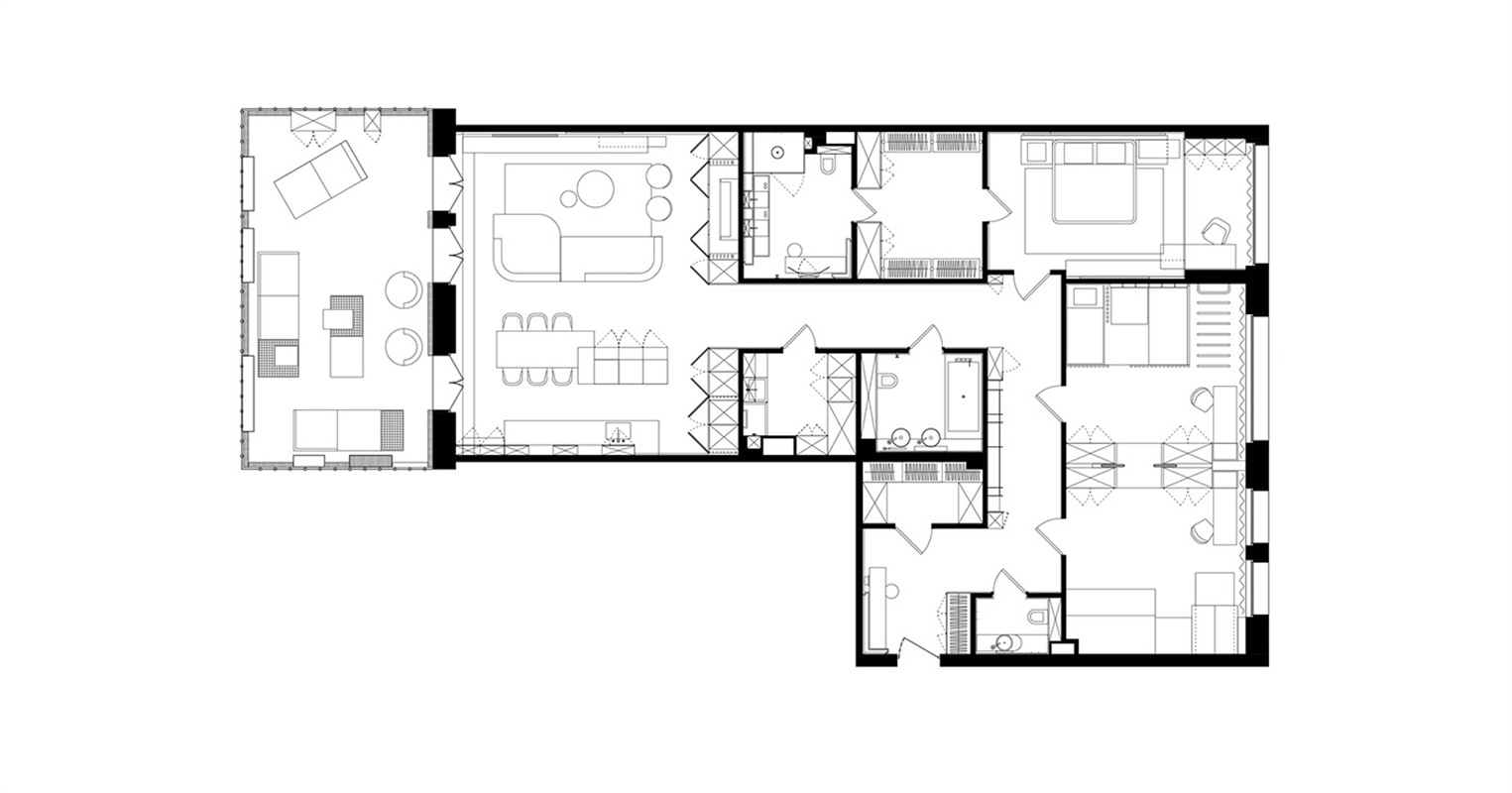
​成都别墅设计装修海派设计师空间装饰解决方案:繁乱混杂的日常,需要宁静轻松的环境来调和。本套案例以现代简约的质感,打造出细腻优雅的冷静美学,干净的线条,纹理和色调的结合是内部的主旋律。大理石纹的岛台,木质的餐桌,灰色的布艺餐椅,白色的橱柜,收纳空间大,各种材料相互协调,带着时尚精英气质,呈现出来的是屋主的内涵与品位。宽大的客厅,灰色的沙发,简约的茶几,精美的布局,舒适怡人的软装搭配,结合精致的墙饰、摆饰,勾勒出层次丰富的美感。餐厅使用一整块大理石地面配合木板台面,轻轻松松就能将沉稳、宁静的一面最大化地彰显。主卧整体空间颜色非常简单,几乎全由低饱和度的颜色组成,颜色上以木质为肌底,予人冷静安谧的视觉感受。直线简单造型的衣帽间整洁奢适,渲染出主人对生活的品味追求。卫生间石纹+木质的背景墙,强化空间的奢华气质之余,给主人带来一种高品质的空间享受。男孩房的设计动感十足,灰色玩酷不失条理,整个房的设计趣味又童真。女孩房的设计十分温馨唯美,粉色总是让人充满童真的幻想,保留着孩子般的天真浪漫。这就是三塘精工工艺,打造的优质空间装饰解决方案。

黄龙溪谷独栋别墅装修_私家大宅设计_三塘海派设计师 返回案例列表 成都高端设计师_别墅大宅设计效果图_轻奢装修设计案例
相关推荐 RECOMMEND 返回案例列表
在线咨询

在线咨询

关注我们

联系我们

官方微信

客服微信

关注我们
获取报价 获取报价

获取报价

回顶部 回顶部

返回顶部

获取报价

已有129位客户成功获取了设计方案

X
0.277133s